A4
A4 ARCHITEKTUR

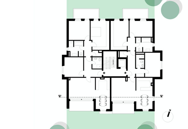
Neubau von vier Luxuswohnungen + großer Penthousewohnung 4- Zimmerwohnungen mit großer Dachterrasse und Tiefgarage. Fertigstellung: 2011

 

Wohnfläche: ca. 690m2